← Retour aux annonces

Location de bureau de 1200 m² à Bordeaux meriadeck

À propos du bien

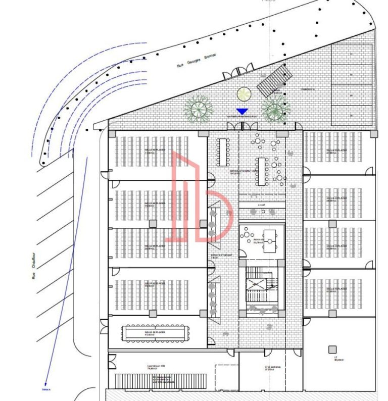
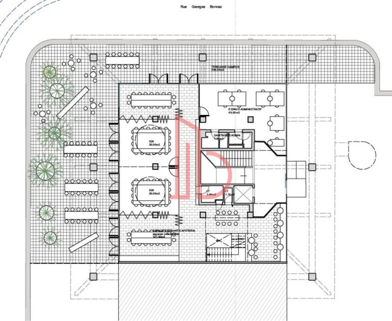
À louer : futur centre de formation ERP de 1 200 m² en rez-de-chaussée. Locaux entièrement rénovés par le propriétaire, livrés neufs, conformes ERP. Idéal pour accueillir du public dans un cadre professionnel.

Référence : N° LB-2025-07-032

Caractéristiques du bien

Type de transaction Location
Type de local Bureau
Secteur Bordeaux meriadeck
Climatisation Non
Bureau cloisonné Non
Fibre Non
Accès PMR / ERP Non
Open space Non
Quai de chargement Non
Parking Non
Seconde main Oui

Conditions financières & bail

Loyer annuel 300 000 €
Loyer au m² 250 €/m²/an

Localisation du bien

Ajouter aux favoris
Partager

Votre
contact

Pierre-Marie DAUVIN

Gérant fondateur Brother Real Estate

Entreprise

Pierre-Marie DAUVIN Gérant fondateur Brother Real Estate - Entreprise

Parlez nous de votre projet

Ce bien m'intéresse

Formulaire contact bien

Autres bureaux et locaux à Bordeaux

Voir toutes les annonces

Analyse du secteur — BORDEAUX BORDEAUX MERIADECK

Environnement professionnel du secteur

Accessibilité pour les équipes et visiteurs

  • 🚊 Tramway — Arrêt Saint-Bruno - Hôtel de Région150 m
  • 🚌 Bus — Arrêt Saint-Bruno - Hôtel de Région50 m
  • 🚲 Station VCub150 m
  • 🅿️ Parking public150 m

Temps de trajet vers les lieux clés

  • Gare Bordeaux Saint-Jean 🚶 ~35 min 🚊 ~19 min 🚗 ~4 min
  • Aéroport Bordeaux-Mérignac 🚊 ~47 min 🚗 ~15 min
  • Centre-ville (Place de la Bourse) 🚶 ~16 min 🚊 ~12 min 🚗 ~2 min
  • Accès rocade (A630) 🚗 ~3 min

Estimations à vol d'oiseau. 🚶 à pied · 🚊 en transport (si arrêt < 600 m) · 🚗 en voiture, sans trafic.

Services et commerces à proximité

Dans un rayon de 250 m.

  • Restaurants et cafés : 14
  • Boulangeries / commerces : 20
  • Pharmacies : 1
  • Banques : 8

Présentation des bureaux

À Bordeaux, au cœur de Mériadeck, cet actif de bureaux privilégie l’accessibilité des équipes et visiteurs. Le secteur concentre de nombreux services utiles à pied, facilitant l’organisation des journées de travail et la tenue de sessions de formation ou de réunions.

L’environnement immédiat combine commerces et services. Des enseignes du quotidien comme Carrefour City et Auchan France sont présentes, et plusieurs restaurants sont accessibles rapidement (ex. Le Bistro du Sommelier — 41 m, Brasserie Liber — 141 m). Côté commodités, Saint Bruno Pharmacy — 112 m et METPARK - Siège social — 98 m complètent l’offre pratique.

Côté configuration, la surface de 1 200 m² se situe en rez-de-chaussée, livrée neuve et conforme ERP. Le cloisonnement et l’équipement en climatisation ou fibre ne sont pas précisés au dossier. Pas de stationnement privatif indiqué.

Les déplacements sont simplifiés : Tram – arrêts Saint-Bruno - Hôtel de Région et Mériadeck; Bus – arrêts Saint-Bruno - Hôtel de Région et Manège. Côté vie au bureau, plusieurs adresses pour déjeuner ou prendre un café sont à courte distance (Brasserie Elixor — 143 m, Brin de thé — 59 m), ainsi que des commerces du quotidien.

Dossier suivi par RÉAL GROUP. Contactez-nous pour organiser une visite et obtenir les informations complémentaires nécessaires à votre prise de décision.

Un emplacement stratégique pour une entreprise

Un emplacement stratégique pour une entreprise

À Mériadeck, l’entreprise bénéficie d’un environnement opérationnel où l’on trouve rapidement de quoi se restaurer, s’approvisionner et gérer les besoins du quotidien. Restaurants et cafés variés (ex. Le Bistro du Sommelier, Brasserie Liber), pharmacie et commerces de proximité sont accessibles en quelques minutes à pied, ce qui fluidifie les rythmes de réunion et de formation.

La présence d’enseignes structurantes comme Carrefour City et Auchan France renforce la praticité du secteur. Cette configuration sert les organisations qui recherchent une localisation centrale à Bordeaux, en phase avec une stratégie de location bureau bordeaux alliant accessibilité et services immédiats.

Contexte du marché professionnel local

Secteur actif de Mériadeck, combinant accès en transports en commun et services immédiats pour les équipes. La présence d’un parking public et d’une station VCub facilite les mobilités. Les commerces et la restauration à pied soutiennent l’organisation quotidienne.

  • Type d’environnement : secteur mixte
  • Accessibilité : tram (Saint-Bruno - Hôtel de Région, Mériadeck) et bus (Saint-Bruno - Hôtel de Région, Manège) à quelques minutes; parking public proche
  • Services professionnels : restaurants, cafés, commerces et services du quotidien (ex. Le Bistro du Sommelier, Saint Bruno Pharmacy)
  • Profil d’entreprise adapté : équipes formation/accueil public ou fonctions support recherchant un rez-de-chaussée conforme ERP avec accès simple

Accessibilité pour les équipes et visiteurs

Accéder à ces bureaux à Bordeaux

Les équipes et visiteurs accèdent aisément au site grâce au maillage transports: Tram – arrêt Saint-Bruno - Hôtel de Région à ~2 min à pied et Tram – arrêt Mériadeck à ~5 min à pied; Bus – arrêt Saint-Bruno - Hôtel de Région à ~1 min et Bus – arrêt Manège à ~2 min. Cette proximité facilite les liaisons intra-métropolitaines et limite les temps d’approche pour les rendez-vous.

Un parking public se situe à ~2 min, utile pour les visiteurs motorisés. Une station VCub est accessible à ~2 min pour les mobilités douces. Accès voiture direct via les axes urbains. Accessibilité PMR: non précisé au dossier.

Analyse du secteur pour bureaux

  • Accessibilité : tram (Saint-Bruno - Hôtel de Région, Mériadeck), bus (Saint-Bruno - Hôtel de Région, Manège), parking public à proximité
  • Services aux équipes : restauration variée (ex. Brasserie Liber, Brasserie Elixor), pharmacie (Saint Bruno Pharmacy), commerces du quotidien
  • Point fort : bureaux en rez-de-chaussée livrés neufs, conformes ERP
  • Lecture économique : 250 €/m²/an (loyer annuel 300 000 € HT HC) — type de bail non précisé

Un environnement pratique pour le quotidien des équipes

Un environnement pratique pour le quotidien des équipes

Les collaborateurs disposent, à quelques pas, de restaurants et cafés pour la pause (ex. Brasserie Elixor, Brin de thé), d’une pharmacie (Saint Bruno Pharmacy) et de commerces utiles (courses rapides, retouches, multimédia). Des services professionnels sont également présents (ex. METPARK - Siège social, PARCUB), facilitant la gestion des déplacements et du stationnement. L’ensemble contribue à une organisation fluide des journées de travail.

Pourquoi installer ses bureaux dans ce quartier

Pourquoi installer ses bureaux dans ce quartier

Mériadeck offre un couple accessibilité/commodités favorable aux structures recevant du public (locaux conformes ERP) comme aux équipes support. Les transports en commun, la présence de commerces et les solutions de stationnement public réduisent les frictions logistiques au quotidien.

Conditions financières: loyer annuel indicatif de 300 000 € HT HC, soit 250 €/m²/an pour 1 200 m². Charges locatives et type de bail: non précisés au dossier. Une analyse précise du bail et de ses clauses spécifiques reste recommandée.

Questions fréquentes sur ces bureaux

Comment les équipes et clients accèdent-ils facilement au site ?

Le site est desservi par le Tram – arrêt Saint-Bruno - Hôtel de Région (~2 min à pied) et l’arrêt Mériadeck (~5 min), ainsi que par les Bus – arrêts Saint-Bruno - Hôtel de Région (~1 min) et Manège (~2 min). Cette configuration réduit les temps d’approche pour les rendez-vous. Un parking public à environ 2 minutes complète l’accès voiture. Conséquence: une planification de réunions plus flexible et moins de retard lié aux transports.

Quelle est la configuration et quel niveau d’équipement est prévu ?

Le plateau de 1 200 m² est en rez-de-chaussée, livré neuf et conforme ERP, adapté à l’accueil du public. Le cloisonnement, la climatisation et la fibre ne sont pas précisés au dossier. Cela laisse la possibilité d’adapter l’aménagement aux usages (formation, réunions, espaces projets). Conséquence: prévoir un audit technique et un budget d’agencement adaptés.

Quel est le coût d’occupation estimé ?

Le loyer annuel indiqué est de 300 000 € HT HC, soit 250 €/m²/an pour 1 200 m². Les charges locatives et le type de bail ne sont pas précisés. Cette base permet une première projection budgétaire et une comparaison avec d’autres options dans le périmètre. Conséquence: affiner ensuite avec le bailleur les charges et clauses pour sécuriser le coût complet.

En quoi cette location bureau bordeaux convient-elle à une équipe projet ou formation ?

Les locaux sont au rez-de-chaussée, livrés neufs et conformes ERP, facilitant l’accueil de groupes. Les arrêts de tram et de bus proches simplifient la venue des participants. Les restaurants et cafés à pied permettent d’organiser des sessions continues avec des pauses efficaces. Conséquence: une logistique simple pour des plannings serrés.

Quels services du quotidien trouvent les collaborateurs à proximité ?

Des restaurants et cafés (ex. Le Bistro du Sommelier, Brasserie Elixor) sont accessibles à pied, ainsi qu’une pharmacie (Saint Bruno Pharmacy) et des commerces du quotidien. La présence de services de stationnement (METPARK - Siège social, PARCUB) aide à gérer les besoins en accueil visiteurs. Cette offre de proximité réduit les déplacements annexes pendant la journée. Conséquence: un gain de temps opérationnel pour les équipes.